Rif: Sant'Olcese
SANT'OLCESE
GENOVA
PROPONIAMO CONSULENZA TECNICA E LEGALE PER ACQUISTO IN ASTA GIUDIZIARIA PER INFO 340 8515467
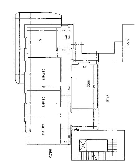
In Via Poirè, in posizione centrale, comoda a mezzi e servizi, proponiamo appartamento di mq 113 posto al sesto ed ultimo piano, composto da entrata, soggiorno, cucina, tre camere, bagno, ripostiglio e due balconi. Completano l'appartamento il terrazzo di copertura di mq 101 ad uso esclusivo, raggiungibile dal vano scale, e la cantina di mq 9.
L'immobile viene venduto dal Tribunale tramite asta giudiziaria ed il prezzo indicato si riferisce all'offerta minima. Acquista in asta giudiziaria affidandoti a professionisti del settore: con la massima tranquillità e trasparenza ti offriremo un servizio completo chiavi in mano. MONDO CASA E' LA STRUTTURA CON SEDE IN GENOVA CHE CON ESPERIENZA ULTRADECENNALE SI OCCUPA A 360° DI CONSULENZA TECNICA E LEGALE PER ACQUISTI DI IMMOBILI IN ASTA GIUDIZIARIA.
In Via Poirè, in posizione centrale, comoda a mezzi e servizi, proponiamo appartamento di mq 113 posto al sesto ed ultimo piano, composto da entrata, soggiorno, cucina, tre camere, bagno, ripostiglio e due balconi. Completano l'appartamento il terrazzo di copertura di mq 101 ad uso esclusivo, raggiungibile dal vano scale, e la cantina di mq 9.
L'immobile viene venduto dal Tribunale tramite asta giudiziaria ed il prezzo indicato si riferisce all'offerta minima. Acquista in asta giudiziaria affidandoti a professionisti del settore: con la massima tranquillità e trasparenza ti offriremo un servizio completo chiavi in mano. MONDO CASA E' LA STRUTTURA CON SEDE IN GENOVA CHE CON ESPERIENZA ULTRADECENNALE SI OCCUPA A 360° DI CONSULENZA TECNICA E LEGALE PER ACQUISTI DI IMMOBILI IN ASTA GIUDIZIARIA.
Consistenze
| Descrizione | Superficie | Sup. comm. |
|---|---|---|
| Principali | ||
| Immobile - 6° piano | 113 Mq | 113 Mqc |
| Balcone - 6° piano | 20 Mq | 6 Mqc |
| Terrazza - 7° piano | 101 Mq | 30 Mqc |
| Cantina - seminterrato | 9 Mq | 2 Mqc |
| Totale | 151 Mqc | |
