Rif: San Fruttuoso
					
              
                           
              
              GENOVA
GENOVA - zona San Fruttuoso
                      	
              
            	
                        
              PROPONIAMO CONSULENZA TECNICA E LEGALE PER ACQUISTO IN ASTA GIUDIZIARIA PER INFO 340 8515467 
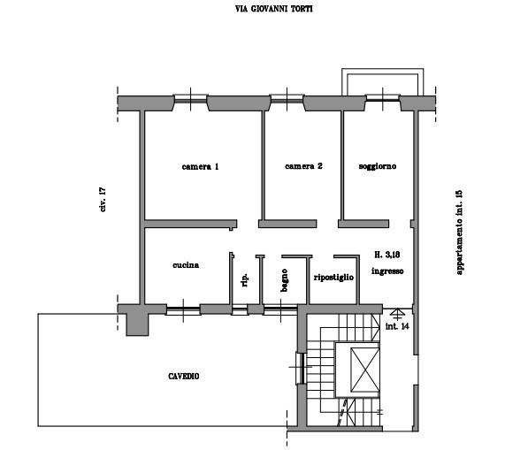
In Via Torti, comoda a mezzi e servizi, proponiamo appartamento di mq 80 posto al quarto piano, composto da entrata, ampia cucina, 3 camere, bagno, due ripostigli e balcone; eliminando un ripostiglio, costruito successivamente, è possibile creare un soggiorno d'ingresso. L'appartamento dispone di finestre in alluminio con vetrocamera.
L'immobile viene venduto dal Tribunale tramite asta giudiziaria ed il prezzo indicato si riferisce all'offerta minima. Acquista in asta giudiziaria affidandoti a professionisti del settore: con la massima tranquillità e trasparenza ti offriremo un servizio completo chiavi in mano. MONDO CASA E' LA STRUTTURA CON SEDE IN GENOVA CHE CON ESPERIENZA ULTRADECENNALE SI OCCUPA A 360° DI CONSULENZA TECNICA E LEGALE PER ACQUISTI DI IMMOBILI IN ASTA GIUDIZIARIA.
						  In Via Torti, comoda a mezzi e servizi, proponiamo appartamento di mq 80 posto al quarto piano, composto da entrata, ampia cucina, 3 camere, bagno, due ripostigli e balcone; eliminando un ripostiglio, costruito successivamente, è possibile creare un soggiorno d'ingresso. L'appartamento dispone di finestre in alluminio con vetrocamera.
L'immobile viene venduto dal Tribunale tramite asta giudiziaria ed il prezzo indicato si riferisce all'offerta minima. Acquista in asta giudiziaria affidandoti a professionisti del settore: con la massima tranquillità e trasparenza ti offriremo un servizio completo chiavi in mano. MONDO CASA E' LA STRUTTURA CON SEDE IN GENOVA CHE CON ESPERIENZA ULTRADECENNALE SI OCCUPA A 360° DI CONSULENZA TECNICA E LEGALE PER ACQUISTI DI IMMOBILI IN ASTA GIUDIZIARIA.
Consistenze
| Descrizione | Superficie | Sup. comm. | 
|---|---|---|
| Principali | ||
| Immobile - 4° piano | 80 Mq | 80 Mqc | 
| Balcone - 4° piano | 3 Mq | 1 Mqc | 
| Totale | 81 Mqc | |
